This charming apartment is perfectly situated by the beautiful Fossa-Levante beach in Calpe.
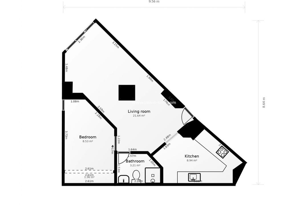
While the building dates back to 1978, both the apartment and the entire floor were fully renovated in 2003, featuring modern finishes that offer a comfortable and contemporary living space.~~With a total living area of 41 m2, this property is ideal as a holiday home or a permanent residence by the sea.
Located on the first floor, it also gives you access to a communal pool – perfect for relaxing under the sun.
And with the beach only 50 metres away, it’s a true coastal gem!~The apartment includes one bedroom and one bathroom, making it ideal for singles or couples looking to enjoy everything this vibrant coastal town has to offer.
Air conditioning units are installed for year-round comfort, whether heating or cooling is needed.~~The property is in excellent condition and ready to move into – no renovations required!~~Don’t miss your chance to own a slice of paradise on the Mediterranean coast.
Dieses charmante Apartment befindet sich in bester Lage am wunderschönen Strand Fossa-Levante in Calpe.
Obwohl das Gebäude aus dem Jahr 1978 stammt, wurde das Apartment sowie die gesamte Etage im Jahr 2003 komplett renoviert und mit modernen Ausstattungen versehen, die für zeitgemäßen Wohnkomfort sorgen.~Mit einer Wohnfläche von 41 m2 bietet die Wohnung alles, was Sie für einen angenehmen Aufenthalt benötigen – ideal als Feriendomizil oder als dauerhafter Wohnsitz am Meer.
Es liegt im ersten Stock und verfügt über einen Gemeinschaftspool, in dem Sie unter der Sonne entspannen können.
Und das Beste: Der Strand ist nur 50 Meter entfernt!~~Das Apartment bietet ein Schlafzimmer und ein Badezimmer – perfekt für Singles oder Paare, die das lebendige Küstenleben genießen möchten.
Klimaanlagen sorgen das ganze Jahr über für angenehme Temperaturen.~~Die Immobilie befindet sich in ausgezeichnetem Zustand und ist sofort bezugsfertig – es sind keine Renovierungsarbeiten erforderlich!~~Verpassen Sie nicht die Gelegenheit, Ihr eigenes Stück Paradies an der Mittelmeerküste zu erwerben.
Este encantador apartamento se encuentra en una ubicación privilegiada, junto a la hermosa playa de Fossa-Levante en Calpe.
Aunque el edificio data de 1978, tanto el apartamento como la planta fueron completamente renovados en 2003 con acabados modernos que ofrecen una experiencia de vida cómoda y actual.~~Con una superficie construida de 41 m2, esta vivienda es ideal tanto como residencia habitual como casa de vacaciones junto al mar.
Está situada en la primera planta y cuenta con acceso a una piscina comunitaria perfecta para relajarse bajo el sol.
¡Y lo mejor de todo: la playa está a solo 50 metros!~El apartamento dispone de un dormitorio y un baño, ideal para personas solas o parejas que deseen disfrutar del vibrante estilo de vida de la costa.
Dispone de aire acondicionado para climatización durante todo el año.~~La propiedad está en excelente estado y lista para entrar a vivir – ¡no se necesita ninguna reforma!~~No pierdas la oportunidad de ser propietario de este pedacito de paraíso en la costa mediterránea.
Dit charmante appartement is ideaal gelegen aan het prachtige Fossa-Levante strand in Calpe.
Hoewel het gebouw dateert uit 1978, werd zowel het appartement als de verdieping volledig gerenoveerd in 2003, met moderne afwerkingen die zorgen voor een eigentijdse en comfortabele leefomgeving.~Met een woonoppervlakte van 41 m2 biedt deze woning alles wat je nodig hebt, of je nu op zoek bent naar een vakantieverblijf of een permanente woonplek aan zee.
Gelegen op de eerste verdieping, geniet je hier van de luxe van een gemeenschappelijk zwembad én de zee op steenworp afstand — slechts 50 meter van je voordeur!~~Het appartement beschikt over één slaapkamer en één badkamer, perfect voor singles of koppels die willen genieten van het bruisende leven aan de Costa Blanca.
Dankzij de geïnstalleerde airconditioning is het binnen altijd aangenaam, zowel in de zomer als in de winter.~De woning verkeert in uitstekende staat en is instapklaar — geen renovaties nodig!~~Grijp deze unieke kans om eigenaar te worden van een zonnig stukje paradijs aan de Middellandse Zee.