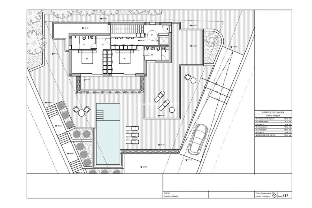
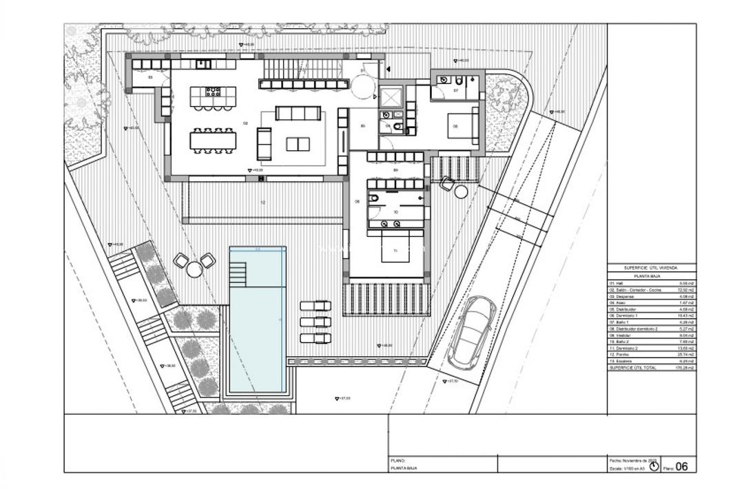
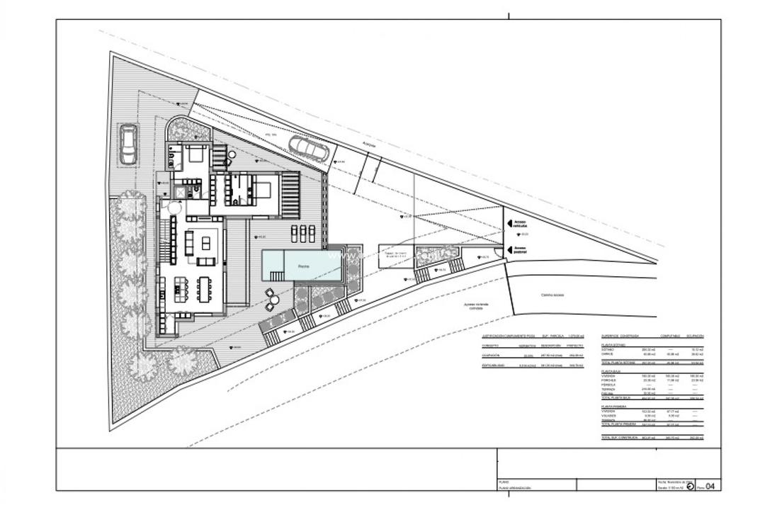
Construction project of a Villa in Modern Ibizan style of new build with building license and sea views for sale in Costera del Mar Moraira on the Costa Blanca of Alicante in Spain, Southwest orientation, very privileged location 1.2km from the beach of Portet and 1 km from the commercial area and the center of Moraira, Built on a plot of 1,070 m² flat with 903 m² built, 340.70 m2 of housing distributed over 2 floors + basement connected by internal staircase and elevator, distributed in 4 bedrooms with bathroom en suite, 2 toilets, living room, dining room with open kitchen fully equipped with SIEMENS brand appliances and with direct access to the covered and uncovered terraces (210 m2) of the overflowing saltwater pool of 35 m2 of water, equipped with underfloor heating, ducted air conditioning, landscaped Mediterranean garden with automatic irrigation, closed garage for two cars, laundry, gym area, cinema room, pre-installation of solar panels...
Bauprojekt einer Villa im modernen ibizenkischen Stil des Neubaus mit Baugenehmigung und Meerblick zum Verkauf in Costera del Mar Moraira an der Costa Blanca von Alicante in Spanien, Südwestausrichtung, sehr privilegierte Lage 1,2 km vom Strand von Portet und 1 km vom Geschäftsviertel und dem Zentrum von Moraira entfernt, Erbaut auf einem Grundstück von 1.070 m² Wohnung mit 903 m² bebaut, 340,70 m2 Wohnfläche verteilt auf 2 Etagen + Keller , verbunden durch Innentreppe und Aufzug, verteilt auf 4 Schlafzimmer mit Bad en suite, 2 Toiletten, Wohnzimmer, Esszimmer mit offener Küche, komplett ausgestattet mit Geräten der Marke SIEMENS und mit direktem Zugang zu den überdachten und nicht überdachten Terrassen (210 m2) des überlaufenden Salzwasserpools von 35 m2 Wasser, ausgestattet mit Fußbodenheizung, Klimaanlage, angelegtem mediterranem Garten mit automatischer Bewässerung, geschlossener Garage für zwei Autos, Wäscherei, Fitnessbereich, Kinoraum, Vorinstallation von Sonnenkollektoren...
Proyecto de construcción de una Villa en estilo Ibicenco Moderno de obra nueva con licencia de obras y vistas al mar en venta en Costera del Mar Moraira en la Costa Blanca de Alicante en España, orientación Suroeste, ubicación muy privilegiada a 1,2km de la playa del Portet y a 1 km de la zona comercial y el centro de Moraira, construida sobre parcela de 1.070 m² llana con 903 m² construidos, 340,70 m2 de vivienda distribuidos en 2 plantas + sótano conectadas por escalera interior y ascensor, distribuidos en 4 dormitorios con baño en suite, 2 aseos, salon, comedor con cocina americana abierta totalmente equipada con electrodomésticos marca SIEMENS y con salida directa a las terrazas cubiertas y descubiertas (210 m2) de la piscina de agua salada desbordante de 35 m2 de lámina de agua, equipada con suelo radiante, aire acondicionado por conductos, jardín mediterráneo paisajístico con riego automático, garaje cerrado para dos autos, lavanderia, zona Gym, sala de cine, Preinstalación de placas solares...
Bouwproject van een villa in moderne Ibiza-stijl van nieuwbouw met bouwvergunning en uitzicht op zee te koop in Costera del Mar Moraira aan de Costa Blanca van Alicante in Spanje, zuidwestelijke oriëntatie, zeer bevoorrechte locatie op 1,2 km van het strand van Portet en 1 km van het commerciële gebied en het centrum van Moraira, Gebouwd op een perceel van 1.070 m² appartement met 903 m² bebouwd, 340,70 m2 woningen verdeeld over 2 verdiepingen + kelder verbonden door interne trap en lift, verdeeld in 4 slaapkamers met badkamer en suite, 2 toiletten, woonkamer, eetkamer met open keuken volledig uitgerust met apparatuur van het merk SIEMENS en met directe toegang tot de overdekte en onoverdekte terrassen (210 m2) van het overlopende zoutwaterzwembad van 35 m2 water, uitgerust met vloerverwarming, geleide airconditioning, aangelegde mediterrane tuin met automatische irrigatie, gesloten garage voor twee auto's, wasserette, fitnessruimte, bioscoopzaal, pre-installatie van zonnepanelen...