NEW BUILD RESIDENTIAL COMPLEX IN LA NUCIA New Build residential complex of apartments and penthouses with outdoor communal pool, parking, storage room, lift, gym, communal spa with indoor heated pool, sauna, jacuzzi in La Nucia.
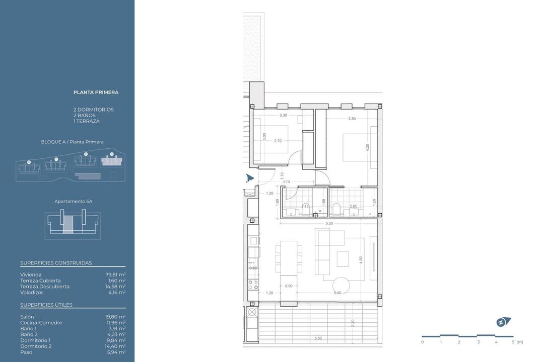
Modern properties with 2 and 3 bedrooms, all with 2 bathrooms, open plan kitchen with spacious living room, fitted wardrobes, terrace, underground parking space.
Penthouses has private solariums.
Excellence in its avant-garde architecture, exquisite finishes and high-end services, a dream urbanization for those looking for the highest level of comfort and distinction.
Interiors that combine elegant design and modern sophistication, create spaces that turn every day into an exceptional experience of comfort and well-being.
German designer kitchen, Burger or similar, with Silestone worktop, fully equipped.
Siemens appliances or similar.
Induction hob, extractor fan, oven and fridge and dishwasher integrated in the units.
Reinforced access door to the property with security lock finished with lacquered panelling to match the interior carpentry.
Option to fit lock with remote control from smartphone or tablet.
Modular wardrobes with hinged or sliding doors lacquered to match the rest of the carpentry, including boot, drawers and hanging rail.
The property will be prepared to be able to contract high speed internet.
There will be low consumption electric underfloor heating in the bathrooms.
The video intercom will be electronic with colour image and will have integrated remote control from telephone or tablet.
Samsung air conditioning.
Each room will have its own interior machine and independent control.
The air conditioning will have remote control.
It can be controlled from a telephone or tablet.
The complete installation of the Air Conditioning System will be carried out, equipped with a heat pump to provide both cooling and heating.
Ducts made of fibreglass will also be used.
The indoor units will be located in the false ceiling in the bathrooms and corridor area, while the outdoor unit will be installed in the area assigned in the project.
Ventilation.
Installation of interior air renewal in dwellings with extraction outlets in bathrooms and kitchen and clock for programming the timetable.
Swimming pool for community use with saline chlorination and automatic control of PH and chlorine.
In the basement there will be a gymnasium, indoor heated pool, jacuzzi, sauna, steam bath, chromotherapy and changing rooms with bathrooms.
Large terrace areas and gardens with indigenous plants for multiple uses in the communal area.
The perimeter of the plot will be planted with plants that will create a private atmosphere in the enclosure as they grow.
There will be a video surveillance system for the communal areas.
Located in a privileged location, between Nucia and Altea this residencial enjoys an exceptional environment and excellent services within the urbanization.
NEU GEBAUTE WOHNANLAGE IN LA NUCIA Neubau-Wohnanlage mit Wohnungen und Penthäusern mit Außenpool, Parkplatz, Abstellraum, Aufzug, Fitnessraum, Gemeinschafts-Spa mit beheiztem Innenpool, Sauna, Jacuzzi in La Nucia.
Moderne Wohnungen mit 2 und 3 Schlafzimmern, alle mit 2 Bädern, offener Küche mit geräumigem Wohnzimmer, Einbauschränken, Terrasse, Tiefgaragenstellplatz.
Penthäuser haben private Solarien.
Hervorragende Avantgarde-Architektur, exquisite Ausstattung und High-End-Services, eine traumhafte Urbanisation für alle, die ein Höchstmaß an Komfort und Vornehmheit suchen.
Innenräume, die elegantes Design und moderne Raffinesse verbinden, schaffen Räume, die jeden Tag zu einem außergewöhnlichen Erlebnis von Komfort und Wohlbefinden machen.
Deutsche Designerküche, Burger oder ähnlich, mit Silestone-Arbeitsplatte, komplett ausgestattet.
Siemens-Geräte oder ähnlich.
Induktionskochfeld, Dunstabzugshaube, Backofen, Kühlschrank und Geschirrspüler in den Schränken integriert.
Verstärkte Zugangstür zur Immobilie mit Sicherheitsschloss, das mit einer lackierten Verkleidung passend zum Innenausbau versehen ist.
Optional kann das Schloss mit einer Fernbedienung für Smartphone oder Tablet ausgestattet werden.
Modulare Schränke mit Dreh- oder Schiebetüren, die passend zum Rest der Schreinerei lackiert sind, einschließlich Kofferraum, Schubladen und Hängeschiene.
Die Wohnung wird so hergerichtet, dass sie mit Hochgeschwindigkeitsinternet ausgestattet werden kann.
In den Bädern wird eine elektrische Fußbodenheizung mit niedrigem Verbrauch installiert.
Die Video-Gegensprechanlage wird elektronisch mit Farbbild und integrierter Fernsteuerung über Telefon oder Tablet sein.
Samsung-Klimaanlage.
Jedes Zimmer hat eine eigene Inneneinrichtung und eine unabhängige Steuerung.
Die Klimaanlage wird über eine Fernbedienung verfügen.
Sie kann über ein Telefon oder ein Tablet gesteuert werden.
Die komplette Installation der Klimaanlage wird mit einer Wärmepumpe ausgestattet sein, die sowohl kühlen als auch heizen kann.
Es werden auch Kanäle aus Glasfaser verwendet.
Die Innengeräte werden in der Zwischendecke in den Bädern und im Flurbereich untergebracht, während das Außengerät in dem im Projekt vorgesehenen Bereich installiert wird.
Belüftung.
Installation einer Innenlufterneuerung in den Wohnungen mit Abluftauslässen in den Badezimmern und der Küche sowie einer Uhr zur Programmierung des Zeitplans.
Schwimmbad zur gemeinschaftlichen Nutzung mit Salzchlorierung und automatischer Kontrolle des PH-Wertes und des Chlorgehalts.
Im Untergeschoss befinden sich ein Fitnessraum, ein beheiztes Hallenbad, ein Whirlpool, eine Sauna, ein Dampfbad, eine Chromotherapie und Umkleideräume mit Bädern.
Große Terrassenflächen und Gärten mit einheimischen Pflanzen für eine vielfältige Nutzung im Gemeinschaftsbereich.
Die Grundstücksgrenzen werden mit Pflanzen bepflanzt, die im Laufe ihres Wachstums eine private Atmosphäre in der Anlage schaffen werden.
Es wird ein Videoüberwachungssystem für die Gemeinschaftsbereiche geben.
In einer privilegierten Lage, zwischen Nucia und Altea gelegen, genießt diese Wohnanlage eine außergewöhnliche Umgebung und ausgezeichnete Dienstleistungen innerhalb der Urbanisation.
COMPLEJO RESIDENCIAL DE OBRA NUEVA EN LA NUCIA Complejo residencial de obra nueva de apartamentos y áticos con piscina comunitaria exterior, parking, trastero, ascensor, gimnasio, spa comunitario con piscina cubierta climatizada, sauna, jacuzzi en La Nucia.
Viviendas modernas de 2 y 3 dormitorios, todas con 2 baños, cocina americana con amplio salón, armarios empotrados, terraza, plaza de garaje subterráneo.
Los áticos disponen de solarium privado.
Excelencia en su arquitectura vanguardista, exquisitos acabados y servicios de alta gama, una urbanización de ensueño para quienes buscan el máximo nivel de confort y distinción.
Interiores que combinan elegante diseño y moderna sofisticación, crean espacios que convierten cada día en una excepcional experiencia de confort y bienestar.
Cocina de diseño alemán, Burger o similar, con encimera de Silestone, totalmente equipada.
Electrodomésticos Siemens o similar.
Placa de inducción, campana extractora, horno y frigorífico y lavavajillas integrados en los muebles.
Puerta de acceso a la vivienda blindada con cerradura de seguridad acabada con cuarterones lacados a juego con la carpintería interior.
Opción de instalar cerradura con mando a distancia desde smartphone o tablet.
Armarios modulares con puertas batientes o correderas lacadas a juego con el resto de la carpintería, incluyendo maletero, cajonera y barra de colgar.
La vivienda estará preparada para poder contratar internet de alta velocidad.
Habrá suelo radiante eléctrico de bajo consumo en los baños.
El video portero será electrónico con imagen en color y dispondrá de mando a distancia integrado desde teléfono o tablet.
Aire acondicionado Samsung.
Cada habitación tendrá su propia máquina interior y control independiente.
El aire acondicionado tendrá mando a distancia.
Se podrá controlar desde teléfono o tablet.
Se realizará la instalación completa del Sistema de Aire Acondicionado, dotado de bomba de calor para proporcionar tanto refrigeración como calefacción.
También se utilizarán conductos de fibra de vidrio.
Las unidades interiores se ubicarán en el falso techo de la zona de baños y pasillo, mientras que la unidad exterior se instalará en la zona asignada en el proyecto.
Ventilación.
Instalación de renovación de aire interior en viviendas con tomas de extracción en baños y cocina y reloj para programación horaria.
Piscina de uso comunitario con cloración salina y control automático de PH y cloro.
En el sótano habrá gimnasio, piscina cubierta climatizada, jacuzzi, sauna, baño de vapor, cromoterapia y vestuarios con baños.
Amplias zonas de terrazas y jardines con plantas autóctonas para usos múltiples en la zona comunitaria.
El perímetro de la parcela se plantará con plantas que crearán un ambiente privado en el recinto a medida que crezcan.
Habrá un sistema de videovigilancia para las zonas comunes.
Situado en una ubicación privilegiada, entre Nucia y Altea este residencial goza de un entorno excepcional y excelentes servicios dentro de la urbanización.
NIEUWBOUW WOONCOMPLEX IN LA NUCIA Nieuwbouw wooncomplex met appartementen en penthouses met gemeenschappelijk buitenzwembad, parkeerplaats, berging, lift, fitnessruimte, gemeenschappelijke spa met verwarmd binnenzwembad, sauna, jacuzzi in La Nucia.
Moderne woningen met 2 en 3 slaapkamers, allemaal met 2 badkamers, open keuken met ruime woonkamer, inbouwkasten, terras, ondergrondse parkeerplaats.
Penthouses hebben een eigen solarium.
Uitmuntendheid in haar avant-garde architectuur, prachtige afwerking en high-end diensten, een droom urbanisatie voor diegenen die op zoek zijn naar het hoogste niveau van comfort en distinctie.
Interieurs die elegant design en moderne verfijning combineren, creëren ruimtes die van elke dag een uitzonderlijke ervaring van comfort en welzijn maken.
Duitse designkeuken, Burger of gelijkwaardig, met Silestone werkblad, volledig uitgerust.
Siemens apparatuur of vergelijkbaar.
Inductiekookplaat, afzuigkap, oven en koelkast en vaatwasser geïntegreerd in de eenheden.
Verstevigde toegangsdeur tot het pand met veiligheidsslot, afgewerkt met gelakte lambrisering die past bij het interieur.
Optioneel slot met afstandsbediening vanaf smartphone of tablet.
Modulaire garderobekasten met draai- of schuifdeuren, gelakt in dezelfde kleur als de rest van het interieur, inclusief kofferruimte, lades en ophangrail.
De woning wordt voorbereid om snel internet te kunnen contracteren.
Er komt elektrische vloerverwarming met laag verbruik in de badkamers.
De video-intercom is elektronisch met kleurenbeeld en heeft een geïntegreerde afstandsbediening vanaf telefoon of tablet.
Samsung airconditioning.
Elke kamer heeft zijn eigen interieurmachine en onafhankelijke bediening.
De airconditioning heeft een afstandsbediening.
Deze kan worden bediend vanaf een telefoon of tablet.
De volledige installatie van het airconditioningsysteem zal worden uitgevoerd, uitgerust met een warmtepomp om zowel te koelen als te verwarmen.
Er worden ook kanalen van glasvezel gebruikt.
De binnenunits worden in het verlaagde plafond in de badkamers en de gang geplaatst, terwijl de buitenunit in de toegewezen ruimte van het project wordt geïnstalleerd.
Ventilatie.
Installatie van binnenluchtverversing in woningen met afzuigopeningen in badkamers en keuken en klok voor het programmeren van het tijdschema.
Zwembad voor gemeenschappelijk gebruik met chloorzout en automatische controle van PH en chloor.
In de kelder komt een fitnessruimte, verwarmd binnenzwembad, jacuzzi, sauna, stoombad, chromotherapie en kleedkamers met badkamers.
Grote terrassen en tuinen met inheemse planten voor meervoudig gebruik in de gemeenschappelijke ruimte.
De omtrek van het perceel zal worden beplant met planten die een privé-sfeer zullen creëren in de omheining als ze groeien.
Er komt een videobewakingssysteem voor de gemeenschappelijke ruimtes.
Gelegen op een bevoorrechte locatie, tussen Nucia en Altea, geniet deze residentie van een uitzonderlijke omgeving en uitstekende diensten binnen de urbanisatie.