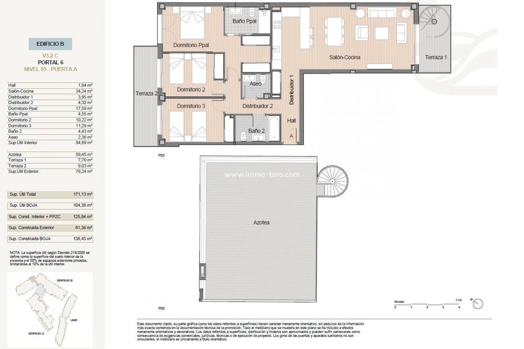
Modern New Build Homes in a Prime Residential Area of Estepona Contemporary living in the heart of EsteponaWelcome to an exclusive residential project of 87 new build homes with 2, 3 and 4 bedrooms, offering a wide selection of layouts including spacious apartments, penthouses with private solariums and stylish townhouses.
Located in a peaceful and fast growing residential district of Estepona, this development provides the ideal balance between comfort, modern lifestyle and excellent connectivity.
Set just 1600 m from the Mediterranean Sea, this residential community sits in one of the city’s most promising urban expansion zones.
With quiet surroundings, full access to essential services and convenient transport connections, this is a perfect location for both year round living and holiday retreats.
A vibrant neighborhood with everything at your doorstepThe complex enjoys a privileged setting just steps from the Estepona Athletics Stadium and the Felipe VI Theatre Auditorium.
The area is surrounded by a growing commercial hub featuring supermarkets, shops, convenience stores, schools, public transport lines and fast access to major road connections.
Residents will also benefit from proximity to Estepona Marina, where a wide selection of restaurants, cafés and bars offers exceptional Mediterranean and international cuisine.
With the beach and lively promenade just a short distance away, every day brings the opportunity to enjoy the outdoor lifestyle that makes Estepona so special.
Modern architecture and premium amenitiesInspired by the soft Mediterranean landscape, the architecture features fluid lines and southern orientation to maximize sunlight and sea breezes.
The urbanization is fully gated to ensure privacy, comfort and security.
Designed for wellbeing, the communal areas include a saltwater swimming pool, gym, landscaped gardens, parking spaces and private storage rooms.
Interiors stand out for their modern design, generous layouts and smart distribution that enhances natural light.
Spacious terraces create the perfect setting for outdoor dining, chill out areas or relaxing while enjoying open views.
Strategic Costa del Sol locationDistances to main points of interestBeach 1.6 kmEstepona Marina 2 kmPuerto Banus 25 kmMarbella 30 kmMalaga International Airport 80 kmRenowned golf courses 5 to 15 km Live the authentic Mediterranean lifestyleEstepona is one of the most desirable destinations on the Costa del Sol, offering over 20 km of coastline, a modern marina, cultural attractions and a vibrant year round atmosphere.
Whether you are looking for a permanent residence, a holiday home or a secure investment opportunity, this development offers exceptional value and lifestyle.
Contact us today to schedule a visit and secure your new home in Estepona.
Moderne Neubauten in einer erstklassigen Wohngegend von Estepona Zeitgemäßes Wohnen im Herzen von Estepona Willkommen zu einem exklusiven Wohnprojekt mit 87 Neubauten mit 2, 3 und 4 Schlafzimmern, das eine große Auswahl an Grundrissen bietet, darunter geräumige Apartments, Penthäuser mit privaten Sonnenterrassen und stilvolle Stadthäuser.
Dieses Projekt befindet sich in einem ruhigen und schnell wachsenden Wohnviertel von Estepona und bietet die ideale Balance zwischen Komfort, modernem Lebensstil und hervorragender Anbindung.
Nur 1600 m vom Mittelmeer entfernt liegt diese Wohnanlage in einer der vielversprechendsten Stadterweiterungszonen der Stadt.
Mit seiner ruhigen Umgebung, dem guten Zugang zu allen wichtigen Dienstleistungen und der günstigen Verkehrsanbindung ist dies ein perfekter Ort sowohl für das ganze Jahr als auch für den Urlaub.
Ein lebendiges Viertel mit allem vor der Haustür Der Komplex genießt eine privilegierte Lage, nur wenige Schritte vom Leichtathletikstadion von Estepona und dem Theater-Auditorium Felipe VI entfernt.
Die Gegend ist umgeben von einem wachsenden Handelszentrum mit Supermärkten, Geschäften, Convenience-Stores, Schulen, öffentlichen Verkehrsmitteln und schneller Anbindung an wichtige Straßenverbindungen.
Die Bewohner profitieren außerdem von der Nähe zum Yachthafen von Estepona, wo eine große Auswahl an Restaurants, Cafés und Bars außergewöhnliche mediterrane und internationale Küche bietet.
Mit dem Strand und der lebhaften Promenade in unmittelbarer Nähe bietet jeder Tag die Möglichkeit, den Outdoor-Lifestyle zu genießen, der Estepona so besonders macht.
Moderne Architektur und erstklassige Ausstattung Inspiriert von der sanften mediterranen Landschaft zeichnet sich die Architektur durch fließende Linien und eine Ausrichtung nach Süden aus, um Sonnenlicht und Meeresbrise optimal zu nutzen.
Die Urbanisation ist vollständig umzäunt, um Privatsphäre, Komfort und Sicherheit zu gewährleisten.
Die Gemeinschaftsbereiche sind auf Wohlbefinden ausgelegt und umfassen einen Salzwasserpool, einen Fitnessraum, Landschaftsgärten, Parkplätze und private Abstellräume.
Die Innenräume zeichnen sich durch ihr modernes Design, großzügige Grundrisse und eine intelligente Aufteilung aus, die das natürliche Licht optimal nutzt.
Die großzügigen Terrassen bieten den perfekten Rahmen für Mahlzeiten im Freien, zum Entspannen oder um die freie Aussicht zu genießen.
Strategische Lage an der Costa del Sol Entfernungen zu den wichtigsten Sehenswürdigkeiten Strand 1,6 km Yachthafen von Estepona 2 km Puerto Banús 25 km Marbella 30 km Internationaler Flughafen Málaga 80 km Renommierte Golfplätze 5 bis 15 km Erleben Sie den authentischen mediterranen Lebensstil Estepona ist eines der begehrtesten Reiseziele an der Costa del Sol und bietet über 20 km Küste, einen modernen Yachthafen, kulturelle Attraktionen und eine ganzjährig lebhafte Atmosphäre.
Ob Sie einen dauerhaften Wohnsitz, ein Ferienhaus oder eine sichere Investitionsmöglichkeit suchen, diese Wohnanlage bietet Ihnen einen außergewöhnlichen Wert und Lebensstil.
Kontaktieren Sie uns noch heute, um einen Besichtigungstermin zu vereinbaren und sich Ihr neues Zuhause in Estepona zu sichern.
Modernas viviendas de nueva construcción en una zona residencial privilegiada de Estepona Vida contemporánea en el corazón de EsteponaBienvenido a un exclusivo proyecto residencial de 87 viviendas de nueva construcción con 2, 3 y 4 dormitorios, que ofrece una amplia selección de distribuciones, incluyendo amplios apartamentos, áticos con soláriums privados y elegantes adosados.
Situada en una tranquila y próspera zona residencial de Estepona, esta promoción ofrece el equilibrio ideal entre comodidad, estilo de vida moderno y excelentes conexiones.
A solo 1600 m del mar Mediterráneo, esta comunidad residencial se encuentra en una de las zonas de expansión urbana más prometedoras de la ciudad.
Con un entorno tranquilo, pleno acceso a los servicios esenciales y cómodas conexiones de transporte, es un lugar perfecto tanto para vivir todo el año como para pasar las vacaciones.
Un barrio animado con todo a un pasoEl complejo goza de una ubicación privilegiada a pocos pasos del Estadio de Atletismo de Estepona y del Teatro Auditorio Felipe VI.
La zona está rodeada de un centro comercial en expansión con supermercados, tiendas, comercios, colegios, líneas de transporte público y rápido acceso a las principales conexiones por carretera.
Los residentes también se beneficiarán de la proximidad al puerto deportivo de Estepona, donde una amplia selección de restaurantes, cafeterías y bares ofrece una excepcional cocina mediterránea e internacional.
Con la playa y el animado paseo marítimo a poca distancia, cada día brinda la oportunidad de disfrutar del estilo de vida al aire libre que hace tan especial a Estepona.
Arquitectura moderna y servicios de primera calidadInspirada en el suave paisaje mediterráneo, la arquitectura presenta líneas fluidas y orientación sur para aprovechar al máximo la luz solar y la brisa marina.
La urbanización está totalmente cerrada para garantizar la privacidad, la comodidad y la seguridad.
Diseñadas para el bienestar, las zonas comunes incluyen una piscina de agua salada, gimnasio, jardines, plazas de aparcamiento y trasteros privados.
Los interiores destacan por su diseño moderno, sus generosas distribuciones y su inteligente distribución que potencia la luz natural.
Las amplias terrazas crean el escenario perfecto para cenar al aire libre, relajarse o descansar mientras se disfruta de las vistas panorámicas.
Ubicación estratégica en la Costa del SolDistancias a los principales puntos de interésPlaya 1,6 kmPuerto deportivo de Estepona 2 kmPuerto Banús 25 kmMarbella 30 kmAeropuerto Internacional de Málaga 80 kmCampos de golf de renombre 5 a 15 km Viva el auténtico estilo de vida mediterráneoEstepona es uno de los destinos más deseados de la Costa del Sol, con más de 20 km de costa, un moderno puerto deportivo, atracciones culturales y un ambiente animado durante todo el año.
Tanto si busca una residencia permanente, una casa de vacaciones o una oportunidad de inversión segura, esta promoción ofrece un valor y un estilo de vida excepcionales.
Póngase en contacto con nosotros hoy mismo para concertar una visita y asegurarse su nueva vivienda en Estepona.
Moderne nieuwbouwwoningen in een uitstekende woonwijk van Estepona Eigentijds wonen in het hart van EsteponaWelkom bij een exclusief woonproject van 87 nieuwbouwwoningen met 2, 3 en 4 slaapkamers, met een ruime keuze aan indelingen, waaronder ruime appartementen, penthouses met privéterras en stijlvolle herenhuizen.
Dit project ligt in een rustige en snelgroeiende woonwijk van Estepona en biedt de ideale balans tussen comfort, een moderne levensstijl en uitstekende verbindingen.
Deze woonwijk ligt op slechts 1600 m van de Middellandse Zee, in een van de meest veelbelovende stedelijke uitbreidingszones van de stad.
Met een rustige omgeving, volledige toegang tot essentiële voorzieningen en handige vervoersverbindingen is dit een perfecte locatie voor zowel het hele jaar door wonen als voor vakantieverblijven.
Een levendige buurt met alles binnen handbereikHet complex ligt op een bevoorrechte locatie, op slechts een steenworp afstand van het atletiekstadion van Estepona en het Felipe VI Theater Auditorium.
De omgeving wordt omringd door een groeiend commercieel centrum met supermarkten, winkels, buurtwinkels, scholen, openbaar vervoer en snelle toegang tot belangrijke wegverbindingen.
Bewoners profiteren ook van de nabijheid van de jachthaven van Estepona, waar een ruime keuze aan restaurants, cafés en bars uitzonderlijke mediterrane en internationale gerechten serveert.
Met het strand en de levendige boulevard op korte afstand, biedt elke dag de mogelijkheid om te genieten van het buitenleven dat Estepona zo bijzonder maakt.
Moderne architectuur en eersteklas voorzieningenGeïnspireerd door het zachte mediterrane landschap, kenmerkt de architectuur zich door vloeiende lijnen en een zuidelijke oriëntatie om maximaal te profiteren van zonlicht en zeewind.
De urbanisatie is volledig omheind om privacy, comfort en veiligheid te garanderen.
De gemeenschappelijke ruimtes zijn ontworpen met het oog op welzijn en omvatten een zoutwaterzwembad, een fitnessruimte, aangelegde tuinen, parkeerplaatsen en privéopslagruimtes.
Het interieur valt op door het moderne ontwerp, de royale indeling en de slimme verdeling die het natuurlijke licht versterkt.
Ruime terrassen creëren de perfecte omgeving om buiten te dineren, te chillen of te ontspannen terwijl u geniet van het weidse uitzicht.
Strategische ligging aan de Costa del SolAfstanden tot belangrijke bezienswaardighedenStrand 1,6 kmJachthaven van Estepona 2 kmPuerto Banús 25 kmMarbella 30 kmInternationale luchthaven van Málaga 80 kmGerenommeerde golfbanen 5 tot 15 km Ervaar de authentieke mediterrane levensstijlEstepona is een van de meest gewilde bestemmingen aan de Costa del Sol, met meer dan 20 km kustlijn, een moderne jachthaven, culturele bezienswaardigheden en een levendige sfeer het hele jaar door.
Of u nu op zoek bent naar een permanente woning, een vakantiehuis of een veilige investeringsmogelijkheid, dit project biedt uitzonderlijke waarde en levensstijl.
Neem vandaag nog contact met ons op om een bezichtiging te plannen en uw nieuwe woning in Estepona te reserveren.