Luxury New Build Semi-Detached Villas in Benijófar – Costa Blanca Living Privileged Location in BenijófarThese exclusive new build semi-detached villas are located in the charming town of Benijófar, one of the most sought-after areas on the Costa Blanca.
Known for its mix of tradition and modern lifestyle, Benijófar offers all essential services including supermarkets, pharmacies, banks, restaurants, and local shops.
The development is strategically positioned just 10 km from the golden beaches of Guardamar del Segura and only 30 km from Alicante Airport, making it an ideal location for both permanent living and holiday stays.
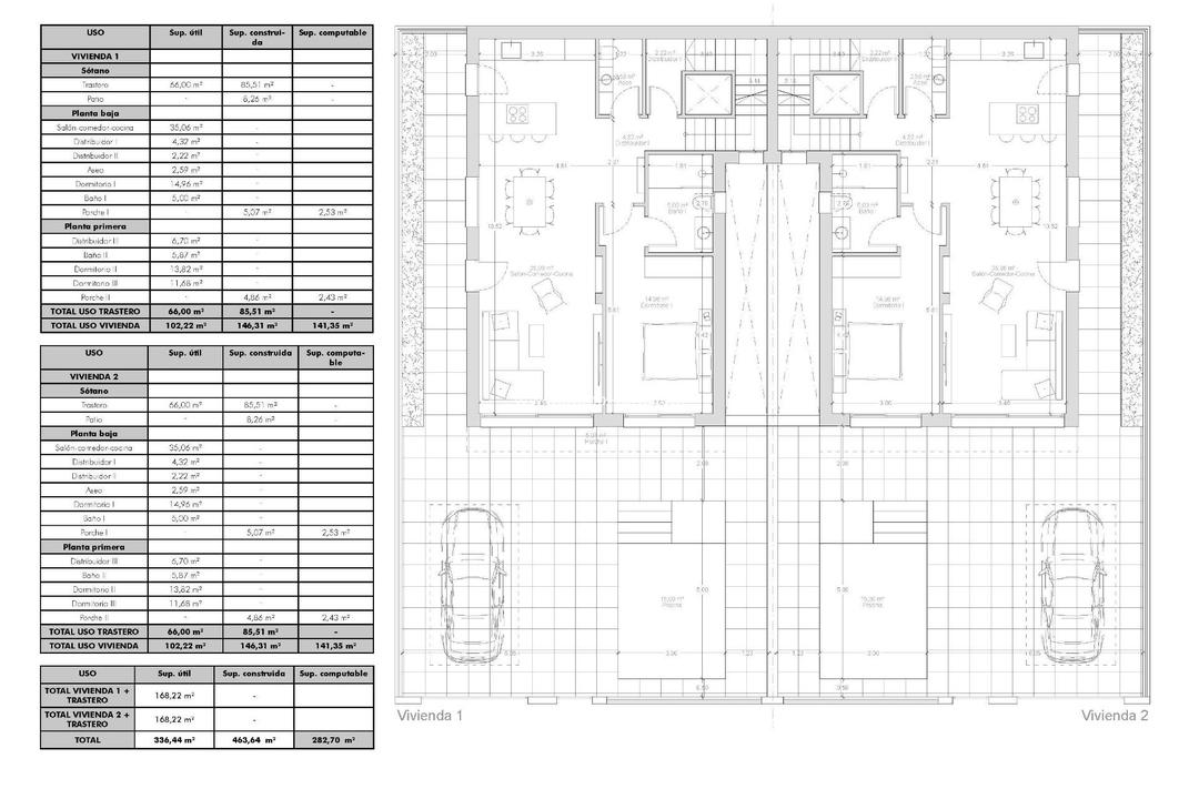
Spacious and Modern DesignEach villa has been designed with a contemporary style, maximizing space and natural light.
The distribution includes three bedrooms (one on the ground floor and two on the first floor) and three bathrooms (including one in the basement), making them perfect for families and guests.
The open-plan living room with dining area flows seamlessly into the fully fitted kitchen, creating a warm and functional environment.
Large windows enhance brightness throughout the home.
Premium Features and ExtrasThese villas stand out for their high-quality finishes and thoughtful details:66 m2 basement with bathroom, gallery and laundry areaPrivate pool, solarium with barbecue and sinkDecorative fireplace in the living roomPrivate parking within the plotElevator from basement to top floor3 photovoltaic solar panels and LED lighting throughoutPre-installed air conditioningFully fitted bathrooms with furniture and shower screensPlot sizes from 200 m2 Lifestyle and SurroundingsBenijófar combines the charm of a traditional Spanish village with the convenience of modern services.
Nature lovers will enjoy the nearby natural park, perfect for walking and cycling.
For golf enthusiasts, La Marquesa Golf is just 5 km away, while several other top courses are within a 15 km radius.
Families can visit the waterparks in Rojales (4 km) and Torrevieja (12 km), or explore the vibrant city of Torrevieja itself, only 12 km away.
Excellent ConnectivityThe villas benefit from easy access to the N-332 and AP-7 motorways, ensuring quick connections to Alicante, Elche, Orihuela Costa, and Murcia.
The area offers the perfect balance of tranquility, amenities, and accessibility.
Your Dream Home in Costa BlancaExperience luxury, comfort, and Mediterranean living in these stunning new build villas in Benijófar.
Contact us today for more details and to arrange a viewing of your future home.
Luxuriöse Doppelhaushälften in Benijófar – Leben an der Costa Blanca Privilegierte Lage in Benijófar Diese exklusiven Doppelhaushälften befinden sich in der charmanten Stadt Benijófar, einer der begehrtesten Gegenden an der Costa Blanca.
Benijófar ist bekannt für seine Mischung aus Tradition und modernem Lebensstil und bietet alle wichtigen Dienstleistungen wie Supermärkte, Apotheken, Banken, Restaurants und lokale Geschäfte.
Die Anlage ist strategisch günstig gelegen, nur 10 km von den goldenen Stränden von Guardamar del Segura und nur 30 km vom Flughafen Alicante entfernt, was sie zu einem idealen Ort für einen dauerhaften Wohnsitz oder einen Urlaubsaufenthalt macht.
Geräumiges und modernes Design Jede Villa wurde in einem zeitgemäßen Stil entworfen, der den Raum und das natürliche Licht optimal nutzt.
Die Aufteilung umfasst drei Schlafzimmer (eines im Erdgeschoss und zwei im ersten Stock) und drei Badezimmer (darunter eines im Untergeschoss), wodurch sie sich perfekt für Familien und Gäste eignen.
Der offene Wohnbereich mit Essbereich geht nahtlos in die voll ausgestattete Küche über und schafft so eine warme und funktionale Umgebung.
Große Fenster sorgen für viel Helligkeit im gesamten Haus.
Hochwertige Ausstattung und Extras Diese Villen zeichnen sich durch ihre hochwertige Verarbeitung und durchdachten Details aus: 66 m² Keller mit Badezimmer, Galerie und Waschküche Privater Pool, Solarium mit Grill und Waschbecken Dekorativer Kamin im Wohnzimmer Privater Parkplatz auf dem Grundstück Aufzug vom Keller bis zum obersten Stockwerk 3 Photovoltaik-Solarmodule und LED-Beleuchtung im gesamten Haus Vorinstallierte Klimaanlage Komplett ausgestattete Badezimmer mit Möbeln und Duschwänden Grundstücksgrößen ab 200 m2 Lifestyle und Umgebung Benijófar verbindet den Charme eines traditionellen spanischen Dorfes mit den Annehmlichkeiten moderner Dienstleistungen.
Naturliebhaber werden den nahe gelegenen Naturpark genießen, der sich ideal zum Wandern und Radfahren eignet.
Für Golfbegeisterte ist der Golfplatz La Marquesa nur 5 km entfernt, während mehrere andere Top-Golfplätze im Umkreis von 15 km liegen.
Familien können die Wasserparks in Rojales (4 km) und Torrevieja (12 km) besuchen oder die lebhafte Stadt Torrevieja selbst erkunden, die nur 12 km entfernt liegt.
Hervorragende Anbindung Die Villen profitieren von einer guten Anbindung an die Autobahnen N-332 und AP-7, die eine schnelle Verbindung nach Alicante, Elche, Orihuela Costa und Murcia gewährleisten.
Die Gegend bietet die perfekte Balance zwischen Ruhe, Annehmlichkeiten und Erreichbarkeit.
Ihr Traumhaus an der Costa Blanca Erleben Sie Luxus, Komfort und mediterranes Wohnen in diesen atemberaubenden Neubau-Villen in Benijófar.
Kontaktieren Sie uns noch heute für weitere Informationen und um einen Besichtigungstermin für Ihr zukünftiges Zuhause zu vereinbaren.
Villas pareadas de lujo de nueva construcción en Benijófar – Costa Blanca Living Ubicación privilegiada en BenijófarEstas exclusivas villas pareadas de nueva construcción se encuentran en la encantadora localidad de Benijófar, una de las zonas más cotizadas de la Costa Blanca.
Conocida por su mezcla de tradición y estilo de vida moderno, Benijófar ofrece todos los servicios esenciales, como supermercados, farmacias, bancos, restaurantes y tiendas locales.
La urbanización está estratégicamente situada a solo 10 km de las doradas playas de Guardamar del Segura y a solo 30 km del aeropuerto de Alicante, lo que la convierte en un lugar ideal tanto para vivir todo el año como para pasar las vacaciones.
Diseño espacioso y modernoCada villa ha sido diseñada con un estilo contemporáneo, maximizando el espacio y la luz natural.
La distribución incluye tres dormitorios (uno en la planta baja y dos en la primera planta) y tres baños (incluido uno en el sótano), lo que las hace perfectas para familias e invitados.
El salón-comedor diáfano fluye a la perfección hacia la cocina totalmente equipada, creando un ambiente cálido y funcional.
Los grandes ventanales realzan la luminosidad en toda la vivienda.
Características premium y extrasEstas villas destacan por sus acabados de alta calidad y sus cuidados detalles:Sótano de 66 m2 con baño, galería y zona de lavandería.
Piscina privada, solárium con barbacoa y fregadero.
Chimenea decorativa en el salón.
Aparcamiento privado dentro de la parcela.
Ascensor desde el sótano hasta la planta superior.3 paneles solares fotovoltaicos e iluminación LED en toda la vivienda.
Aire acondicionado preinstalado.
Baños completos con muebles y mamparas de ducha.
Parcelas de 200 m2 Estilo de vida y entornoBenijófar combina el encanto de un pueblo tradicional español con la comodidad de los servicios modernos.
Los amantes de la naturaleza disfrutarán del parque natural cercano, perfecto para pasear y montar en bicicleta.
Para los aficionados al golf, La Marquesa Golf está a solo 5 km, mientras que hay otros campos de primera categoría en un radio de 15 km.
Las familias pueden visitar los parques acuáticos de Rojales (4 km) y Torrevieja (12 km), o explorar la animada ciudad de Torrevieja, a solo 12 km.
Excelente conectividadLas villas se benefician de un fácil acceso a las autopistas N-332 y AP-7, lo que garantiza rápidas conexiones con Alicante, Elche, Orihuela Costa y Murcia.
La zona ofrece el equilibrio perfecto entre tranquilidad, servicios y accesibilidad.
La casa de sus sueños en la Costa BlancaDisfrute del lujo, el confort y la vida mediterránea en estas impresionantes villas de nueva construcción en Benijófar.
Póngase en contacto con nosotros hoy mismo para obtener más detalles y concertar una visita a su futuro hogar.
Luxe nieuwbouwwoningen in Benijófar – Costa Blanca Living Bevoorrechte locatie in BenijófarDeze exclusieve nieuwbouwwoningen zijn gelegen in het charmante stadje Benijófar, een van de meest gewilde gebieden aan de Costa Blanca.
Benijófar staat bekend om zijn mix van traditie en moderne levensstijl en biedt alle essentiële voorzieningen, waaronder supermarkten, apotheken, banken, restaurants en lokale winkels.
Het project is strategisch gelegen op slechts 10 km van de gouden stranden van Guardamar del Segura en op slechts 30 km van de luchthaven van Alicante, waardoor het een ideale locatie is voor zowel permanente bewoning als vakantieverblijven.
Ruim en modern ontwerpElke villa is ontworpen in een eigentijdse stijl, waarbij optimaal gebruik is gemaakt van de ruimte en het natuurlijke licht.
De indeling omvat drie slaapkamers (één op de begane grond en twee op de eerste verdieping) en drie badkamers (waarvan één in de kelder), waardoor ze perfect zijn voor gezinnen en gasten.
De open woonkamer met eethoek loopt naadloos over in de volledig ingerichte keuken, waardoor een warme en functionele omgeving ontstaat.
Grote ramen zorgen voor veel lichtinval in het hele huis.
Premium voorzieningen en extra'sDeze villa's onderscheiden zich door hun hoogwaardige afwerking en doordachte details:66 m2 kelder met badkamer, galerij en wasruimtePrivézwembad, solarium met barbecue en gootsteenDecoratieve open haard in de woonkamerPrivé parkeerplaats op het perceelLift van de kelder naar de bovenste verdieping3 fotovoltaïsche zonnepanelen en ledverlichting in het hele huisVoorbereiding voor airconditioningVolledig ingerichte badkamers met meubels en douchewandenPerceelgroottes vanaf 200 m2 Levensstijl en omgevingBenijófar combineert de charme van een traditioneel Spaans dorp met het gemak van moderne voorzieningen.
Natuurliefhebbers kunnen genieten van het nabijgelegen natuurpark, dat perfect is om te wandelen en fietsen.
Voor golfliefhebbers ligt La Marquesa Golf op slechts 5 km afstand, terwijl er verschillende andere topbanen binnen een straal van 15 km te vinden zijn.
Gezinnen kunnen een bezoek brengen aan de waterparken in Rojales (4 km) en Torrevieja (12 km), of de levendige stad Torrevieja zelf verkennen, op slechts 12 km afstand.
Uitstekende verbindingenDe villa's profiteren van een gemakkelijke toegang tot de snelwegen N-332 en AP-7, waardoor u snel in Alicante, Elche, Orihuela Costa en Murcia bent.
De omgeving biedt de perfecte balans tussen rust, voorzieningen en bereikbaarheid.
Uw droomhuis aan de Costa BlancaErvaar luxe, comfort en het mediterrane leven in deze prachtige nieuwbouwwoningen in Benijófar.
Neem vandaag nog contact met ons op voor meer informatie en om een bezichtiging van uw toekomstige woning te regelen.n het leven aan de Costa Blanca te genieten niet.
Neem vandaag nog contact met ons op voor een bezichtiging en zet de eerste stap naar jouw droomhuis.