STUNNING NEW BUILD VILLAS IN DESERT SPRINGS RESORT This beautiful modern & stylish development occupies an envious position on the Desert Springs resort, providing a selection of three-bedroom Villas affording stunning views across the championship Indiana course and mountain ranges beyond.
A gated front courtyard, deep shady verandas, a private landscaped garden looking directly onto the golf course, individual swimming pool, built-in barbecue and extensive roof terraces are but a few of the properties’ external characteristics.
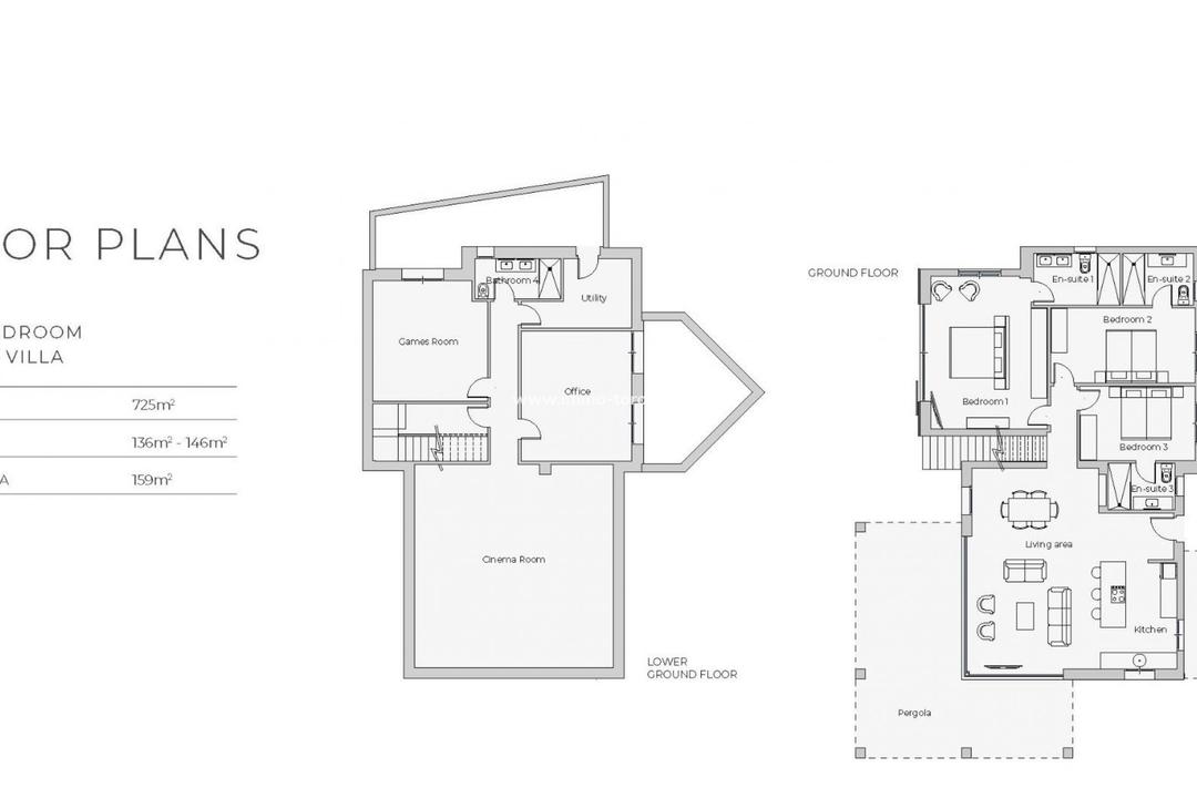
Contemporary design and natural light showcasing an overall feeling of space are the outstanding characteristics of the sophisticated interiors that offer stylish homes with modern appeal.
Features include a spacious internal reception area that opens out with a ‘level through’ floor onto the covered verandas and garden to offer over 93m2 of combined interior/exterior living and dining space, designed to be used as one in the region’s specially privileged climate.
The master bedroom with en-suite has direct access to the extensive veranda and swimming pool.
There are two further bedrooms, both with en-suite bathrooms and cloakroom.
Downstairs the vast lower ground floor presents a games room, cinema room, utility room, office and fourth bathroom.
Double glazing, high quality fitted kitchen, integrated white goods and bedroom wardrobes, and security fittings are standard throughout.
A mechanical ventilation system to lower and ground floor and photovoltaic panels connected to the hot water cylinder with individually controlled hot/cold air-conditioning units to the living room and bedrooms, cater fully for all temperature control requirements.
ATEMBERAUBENDE NEU GEBAUTE VILLEN IM DESERT SPRINGS RESORT Diese wunderschöne, moderne und stilvolle Anlage befindet sich in einer beneidenswerten Lage im Desert Springs Resort und bietet eine Auswahl an Villen mit drei Schlafzimmern, die einen atemberaubenden Blick auf den Meisterschaftsplatz in Indiana und die dahinter liegenden Bergketten bieten.
Ein eingezäunter Vorhof, schattige Veranden, ein privater Landschaftsgarten mit direktem Blick auf den Golfplatz, ein eigener Swimmingpool, ein eingebauter Grill und weitläufige Dachterrassen sind nur einige der äußeren Merkmale der Häuser.
Zeitgenössisches Design und natürliches Licht, das ein umfassendes Raumgefühl vermittelt, sind die herausragenden Merkmale der anspruchsvollen Innenräume, die stilvolle Wohnungen mit modernem Charme bieten.
Zu den Merkmalen gehört ein geräumiger innerer Empfangsbereich, der sich mit einem durchgehenden Fußboden zu den überdachten Terrassen und dem Garten hin öffnet und über 93 m2 kombinierten Wohn- und Essbereich im Innen- und Außenbereich bietet, der so gestaltet ist, dass er in dem besonders privilegierten Klima der Region als Einheit genutzt werden kann.
Das Hauptschlafzimmer mit eigenem Bad hat direkten Zugang zur großen Veranda und zum Swimmingpool.
Es gibt zwei weitere Schlafzimmer, beide mit eigenem Bad und Garderobe.
Im weitläufigen Untergeschoss befinden sich ein Spielzimmer, ein Kinoraum, ein Hauswirtschaftsraum, ein Büro und ein viertes Badezimmer.
Doppelverglasung, eine hochwertige Einbauküche, integrierte Haushaltsgeräte und Schlafzimmerschränke sowie Sicherheitsvorrichtungen gehören zur Standardausstattung.
Ein mechanisches Belüftungssystem im Erdgeschoss und im Untergeschoss sowie Photovoltaik-Paneele, die an den Warmwasserspeicher angeschlossen sind, und individuell gesteuerte Klimaanlagen im Wohnzimmer und in den Schlafzimmern sorgen für eine optimale Temperaturregelung.
IMPRESIONANTES VILLAS DE NUEVA CONSTRUCCIÓN EN DESERT SPRINGS RESORT Esta hermosa urbanización moderna y elegante ocupa una posición envidiable en el complejo Desert Springs y ofrece una selección de villas de tres dormitorios con impresionantes vistas al campo de golf Indiana y a las montañas.
Un patio delantero cerrado, amplios porches sombreados, un jardín privado con vistas directas al campo de golf, piscina individual, barbacoa de obra y amplias terrazas en la azotea son sólo algunas de las características exteriores de las propiedades.
El diseño contemporáneo y la luz natural, con una sensación general de espacio, son las características más destacadas de los sofisticados interiores, que ofrecen viviendas elegantes con un atractivo moderno.
Las características incluyen una espaciosa zona de recepción interna que se abre con un suelo "nivelado" a los porches cubiertos y al jardín para ofrecer más de 93m2 de espacio interior/exterior combinado de salón y comedor, diseñado para ser utilizado como uno solo en el clima especialmente privilegiado de la región.
El dormitorio principal, con baño en suite, tiene acceso directo a la amplia terraza y a la piscina.
Hay dos dormitorios más, ambos con baño en suite y aseo.
En la planta baja hay una sala de juegos, una sala de cine, un lavadero, un despacho y un cuarto baño.
Doble acristalamiento, cocina amueblada de alta calidad, electrodomésticos y armarios empotrados en los dormitorios, y accesorios de seguridad son estándar en todas partes.
Un sistema de ventilación mecánica en la planta baja y la planta baja y paneles fotovoltaicos conectados al acumulador de agua caliente con unidades de aire acondicionado frío/calor controladas individualmente en el salón y los dormitorios, satisfacen plenamente todas las necesidades de control de temperatura.
VERBLUFFENDE NIEUWBOUW VILLA'S IN DESERT SPRINGS RESORT Deze prachtige moderne en stijlvolle ontwikkeling heeft een benijdenswaardige positie op het Desert Springs resort en biedt een selectie van drie-slaapkamer villa's met een prachtig uitzicht over de championship Indiana course en de bergketens daarachter.
Een omheinde binnenplaats, diepe schaduwrijke veranda's, een eigen aangelegde tuin met uitzicht direct op de golfbaan, individueel zwembad, ingebouwde barbecue en uitgebreide dakterrassen zijn slechts enkele van de externe kenmerken van de woningen.
Hedendaags design en natuurlijk licht met een algemeen gevoel van ruimte zijn de opvallende kenmerken van de verfijnde interieurs die stijlvolle woningen met een moderne uitstraling bieden.
Kenmerken zijn een ruime interne ontvangstruimte die via een 'gelijkvloerse' vloer uitkomt op de overdekte veranda's en de tuin en meer dan 93 m2 gecombineerde woon- en eetruimte binnen en buiten biedt, ontworpen om als één geheel te worden gebruikt in het bijzonder bevoorrechte klimaat van de regio.
De hoofdslaapkamer met en-suite badkamer heeft directe toegang tot de grote veranda en het zwembad.
Er zijn nog twee slaapkamers, beide met eigen badkamer en garderobe.
Beneden op de grote benedenverdieping bevinden zich een speelkamer, bioscoopzaal, bijkeuken, kantoor en vierde badkamer.
Dubbele beglazing, hoge kwaliteit inbouwkeuken, geïntegreerd witgoed en slaapkamerkasten, en veiligheidsvoorzieningen zijn standaard.
Een mechanisch ventilatiesysteem op de beneden- en benedenverdieping en fotovoltaïsche panelen aangesloten op de warmwaterboiler met individueel regelbare warm/koud-airconditioning units in de woonkamer en slaapkamers, voorzien volledig in alle vereisten voor temperatuurregeling.