Modern luxury villa of recent construction near the sea in Moraira Contemporary style and minimalist design This modern villa of recent construction in Moraira stands out for its minimalist architecture, elegant lines and a harmonious combination of materials such as natural stone, wood and glass.
Just 300 metres from the sea, it offers a bright and sophisticated atmosphere, with large floor-to-ceiling windows that seamlessly connect the interior with the outdoor areas and allow you to enjoy abundant natural light throughout the day.
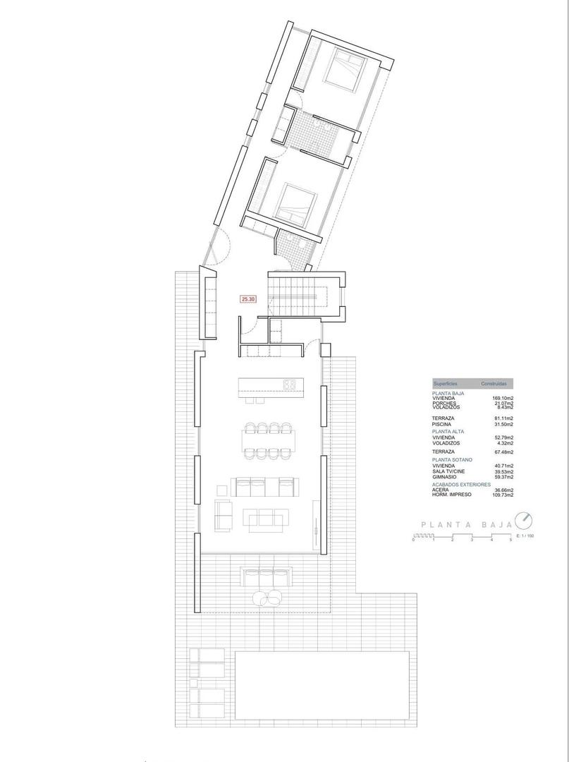
Open spaces and Mediterranean outdoor living The property is spread over two floors and offers open-plan rooms designed for comfort and the Mediterranean lifestyle.
The open-plan living and dining room opens directly onto the terraces and private swimming pool, creating a perfect space for relaxing, sunbathing or enjoying evenings outdoors.
The outdoor area offers an elegant covered lounge, sun terrace and a well-kept garden that guarantees privacy and tranquillity.
Functional layout and premium finishes This villa has 3 bedrooms, 2 bathrooms and 1 guest toilet.
On the ground floor there are two bedrooms, a bathroom, a toilet and spacious communal areas, including a fully fitted open-plan kitchen, utility room and pantry.
On the upper floor is the master suite, a private space with an en-suite bathroom, dressing room and a large 67 m² terrace where you can enjoy open views and the charm of the natural surroundings.
There is the option of adding a basement on request, ideal for creating a gym, cinema room or additional storage space.
Privileged location in Moraira Located in a quiet residential area, close to Playa La Galera and with a supermarket and amenities within walking distance, this property offers excellent connections to the main points of interest on the northern Costa Blanca.
Moraira stands out for its Mediterranean charm, crystal-clear beaches, marina, hiking trails and fine dining restaurants.
Nearby points of interest: Alicante Airport 92 km Valencia Airport 125 km Ifach Golf Club 4 km Moraira Marina 2 km A unique opportunity on the Costa Blanca This villa is perfect as a permanent residence, holiday retreat or premium investment in one of the most exclusive areas of the Mediterranean.
Moderne, neu gebaute Luxusvilla in Meeresnähe in Moraira Zeitgenössischer Stil und minimalistisches Design Diese moderne, neu gebaute Villa in Moraira besticht durch ihre minimalistische Architektur, elegante Linienführung und eine harmonische Kombination von Materialien wie Naturstein, Holz und Glas.
Nur 300 Meter vom Meer entfernt, bietet sie ein helles und elegantes Ambiente mit großen, raumhohen Fenstern, die den Innenbereich perfekt mit den Außenbereichen verbinden und den ganzen Tag über viel Tageslicht hereinlassen.
Offene Räume und mediterranes Leben im Freien Das Haus erstreckt sich über zwei Etagen und bietet offene Räume, die für Komfort und mediterranes Lebensgefühl konzipiert sind.
Das offene Wohn- und Esszimmer öffnet sich direkt zu den Terrassen und dem privaten Pool und schafft so einen perfekten Raum zum Entspannen, Sonnenbaden oder für Abende im Freien.
Der Außenbereich bietet einen eleganten überdachten Wohnbereich, eine Sonnenterrasse und einen gepflegten Garten, der Privatsphäre und Ruhe garantiert.
Funktionale Aufteilung und hochwertige Ausstattung Diese Villa verfügt über 3 Schlafzimmer, 2 Badezimmer und 1 Gästetoilette.
Im Erdgeschoss befinden sich zwei Schlafzimmer, ein Badezimmer, eine Toilette und die großzügigen Gemeinschaftsbereiche, darunter eine voll ausgestattete offene Küche, eine Waschküche und eine Speisekammer.
Im Obergeschoss befindet sich die Master-Suite, ein privater Bereich mit eigenem Bad, Ankleidezimmer und einer 67 m² großen Terrasse, von der aus man die freie Aussicht und den Charme der natürlichen Umgebung genießen kann.
Auf Wunsch kann ein Keller hinzugefügt werden, der sich ideal für einen Fitnessraum, einen Kinoraum oder zusätzlichen Stauraum eignet.
Privilegierte Lage in Moraira In einer ruhigen Wohngegend in der Nähe des Strandes Playa La Galera und mit Supermarkt und Dienstleistungen in unmittelbarer Nähe gelegen, bietet diese Immobilie eine hervorragende Anbindung an die wichtigsten Sehenswürdigkeiten der Costa Blanca Nord.
Moraira zeichnet sich durch seinen mediterranen Charme, Strände mit kristallklarem Wasser, einen Yachthafen, Wanderwege und Restaurants mit gehobener Küche aus.
Sehenswürdigkeiten in der Nähe: Flughafen Alicante 92 km Flughafen Valencia 125 km Golfclub Ifach 4 km Yachthafen von Moraira 2 km Eine einmalige Gelegenheit an der Costa Blanca Diese Villa eignet sich perfekt als Dauerwohnsitz, Urlaubsdomizil oder Premium-Investition in einer der exklusivsten Gegenden des Mittelmeerraums.
Kontaktieren Sie uns noch heute für weitere Informationen und vereinbaren Sie einen Besichtigungstermin.
Moderna villa de nueva construcción cerca del mar en Moraira Esta moderna villa de lujo presenta un diseño minimalista y elegante, con líneas limpias y una armoniosa combinación de materiales naturales como madera, piedra y vidrio.
A 5 minutos a pie del mar (300m).
Sus amplios ventanales de suelo a techo y puertas correderas permiten una integración fluida entre los espacios interiores y exteriores, inundando la vivienda de luz natural.
La zona exterior cuenta con un elegante salón cubierto, una terraza solárium y una piscina rodeada de un jardín paisajístico.
La paleta de colores neutros y la arquitectura contemporánea crean un ambiente sofisticado y acogedor, ideal para el descanso y el entretenimiento.
Además, existe la posibilidad de añadir un sótano por un costo adicional, ofreciendo espacio extra para adaptarlo a necesidades específicas.
Cerca de Playa La Galera y con un supermercado cerca.
La villa se distribuye en dos plantas e incluye Salón y comedor diáfanos con acceso directo a las terrazas y la piscina Cocina abierta totalmente amueblada 3 dormitorios y 2 baños, además de 1 aseo de invitados Lavadero y despensa Jardín privado, terrazas y zona de piscina Suite principal privada y estilo de vida al aire libre La planta baja incluye dos dormitorios, un baño, un aseo y amplias zonas comunes.
En la planta superior, el dormitorio principal ofrece un refugio privado con baño en suite, un amplio vestidor y una terraza de 67 m2, perfecta para disfrutar de las vistas del amanecer y la brisa mediterránea.
El espacio exterior ha sido diseñado para el relax, con una piscina privada, terrazas para tomar el sol y un entorno exuberante que garantiza la tranquilidad y la privacidad.
Moderne, nieuw gebouwde luxe villa vlakbij de zee in Moraira Eigentijdse stijl en minimalistisch ontwerp Deze moderne, nieuw gebouwde villa in Moraira valt op door zijn minimalistische architectuur, elegante lijnen en een harmonieuze combinatie van materialen zoals natuursteen, hout en glas.
Op slechts 300 meter van de zee biedt het een lichte en verfijnde sfeer, met grote ramen van vloer tot plafond die het interieur perfect verbinden met de buitenruimtes en de hele dag door veel natuurlijk licht binnenlaten.
Open ruimtes en mediterraan buitenleven De woning is verdeeld over twee verdiepingen en biedt open ruimtes die zijn ontworpen voor comfort en een mediterrane levensstijl.
De open woon- en eetkamer komen direct uit op de terrassen en het privézwembad, waardoor een perfecte ruimte ontstaat om te ontspannen, te zonnen of te genieten van avonden in de open lucht.
De buitenruimte biedt een elegante overdekte zitruimte, een zonneterras en een verzorgde tuin die privacy en rust garandeert.
Functionele indeling en hoogwaardige afwerking Deze villa heeft 3 slaapkamers, 2 badkamers en 1 gastentoilet.
Op de begane grond bevinden zich twee slaapkamers, een badkamer, een toilet en de ruime gemeenschappelijke ruimtes, waaronder een volledig ingerichte open keuken, een bijkeuken en een voorraadkast.
Op de bovenverdieping bevindt zich de master suite, een privéruimte met en-suite badkamer, kleedkamer en een ruim terras van 67 m2 waar u kunt genieten van het weidse uitzicht en de charme van de natuurlijke omgeving.
Er is de mogelijkheid om op verzoek een kelder toe te voegen, ideaal voor het creëren van een fitnessruimte, bioscoop of extra opslagruimte.
Bevoorrechte locatie in Moraira Gelegen in een rustige woonwijk, dicht bij Playa La Galera en met een supermarkt en voorzieningen op korte afstand, biedt deze woning een uitstekende verbinding met de belangrijkste bezienswaardigheden van de Costa Blanca Noord.
Moraira staat bekend om zijn mediterrane charme, stranden met kristalhelder water, jachthaven, wandelroutes en restaurants met haute cuisine.
Bezienswaardigheden in de buurt: Luchthaven van Alicante 92 km Luchthaven van Valencia 125 km Golfclub Ifach 4 km Jachthaven van Moraira 2 km Een unieke kans aan de Costa Blanca Deze villa is perfect als permanente woning, vakantieverblijf of premium investering in een van de meest exclusieve gebieden van het Middellandse Zeegebied.
Neem vandaag nog contact met ons op voor meer informatie en plan uw bezoek.