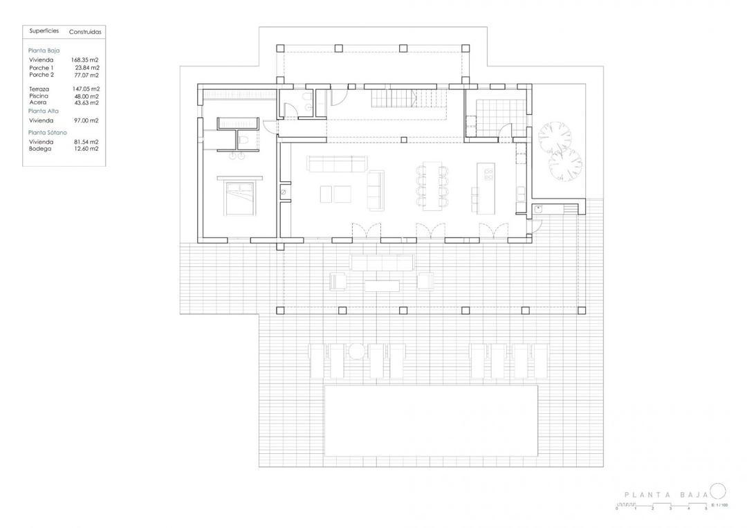
Newly built villa in Teulada with mountain views On the ground floor we find a large living-dining area and open plan kitchen, master bedroom with walking wardrobe and bathroom, front terrace with access to the pool.
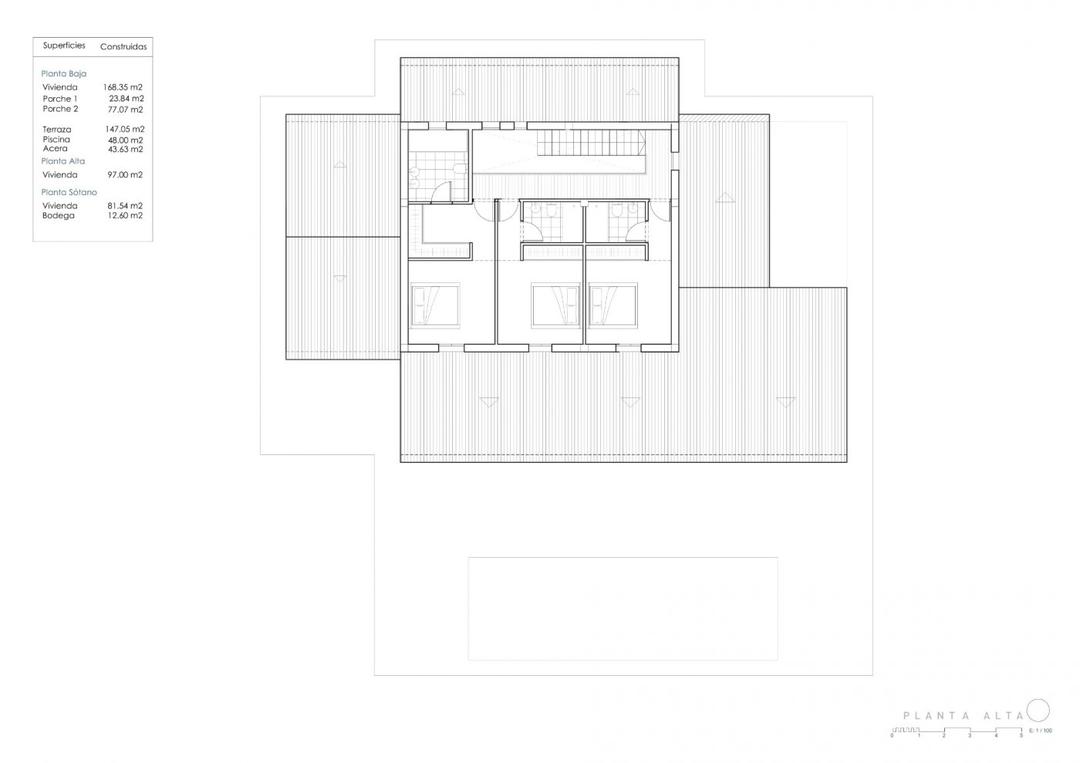
On the first floor is 3 bedrooms with fitted wardrobes, 3 bathrooms en suite.
As well here you have basement of 81m2 with wine celler.
Villa will be build using high quality materials.
The kitchen will be chosen by the client, kitchen cabinets, worktop and appliances.
Air conditioning with climate control system (condense) in the living rooms and bedrooms.
Mitsubishi brand.
The swimming pool will be built with an outdoor shower (hot/cold water connection).
Automatic entrance gate for the cars with remote control and automatic pedestrian door.
Garden to be chosen by the client.
Moraira is a small town with with good restaurants, bars and plenty of supermarkets around.
There is a very pleasant beach right next to town that is great for families.
The seafront offers tremendous views of Penon Ifach across the bay in Calpe.
The coast road getting there is well worth doing with some spectacular views.
It's about the same distance or a little less South from Valencia airport.
NEU GEBAUTE VILLA IN MORAIRA MIT BLICK AUFS MEER Neubau-Villa in Moraira mit privatem Pool und Meerblick.
Im Erdgeschoss finden wir einen großen Wohn-Essbereich und offene Küche, Hauptschlafzimmer mit begehbarem Kleiderschrank und Bad, vordere Terrasse mit Zugang zum Pool.
Im ersten Stock befinden sich 3 Schlafzimmer mit Einbauschränken, 3 Bäder en suite.
Wie auch hier haben Sie Keller von 81m2 mit Weinkeller.
Villa wird mit hochwertigen Materialien gebaut werden.
Die Küche wird vom Kunden gewählt werden, Küchenschränke, Arbeitsplatte und Geräte.
Klimaanlage mit Klimatisierungssystem (Kondensat) in den Wohn- und Schlafzimmern.
Marke Mitsubishi.
Das Schwimmbad wird mit einer Außendusche gebaut Dusche (Warm-/Kaltwasseranschluss).
Automatisches Einfahrtstor für die Autos mit Fernbedienung und automatische Fußgängertür.
Der Garten wird vom Kunden ausgewählt.
Moraira ist eine kleine Stadt mit guten Restaurants, Bars und vielen Supermärkten in der Nähe.
Es gibt einen sehr angenehmen Strand direkt neben der Stadt, der für Familien geeignet ist.
Von der Strandpromenade aus hat man einen herrlichen Blick auf den Penon Ifach auf der anderen Seite der Bucht von Calpe.
Die Küstenstraße dorthin ist es wert, mit einigen spektakulären Aussichten.
Moraira liegt etwa 1 Stunde und 15 Minuten nördlich der A7 vom Flughafen Alicante entfernt und ist relativ leicht zu erreichen.
Vom Flughafen Valencia ist es etwa die gleiche Entfernung oder etwas weniger südlich.
VILLA DE OBRA NUEVA EN MORAIRA CON VISTAS AL MAR Villa de nueva construcción en Moraira con piscina privada y vistas al mar.
En la planta baja encontramos un amplio salón-comedor y cocina abierta, dormitorio principal con armario empotrado y baño, terraza delantera con acceso a la piscina.
En la primera planta hay 3 dormitorios con armarios empotrados, 3 baños en suite.
Además aquí tiene sótano de 81m2 con bodega.
La villa se construirá con materiales de alta calidad.
La cocina será elegida por el cliente, armarios de cocina, encimera y electrodomésticos.
Aire acondicionado con sistema de climatización (condensado) en los salones y dormitorios.
Marca Mitsubishi.
La piscina se construirá con una ducha exterior ducha exterior (conexión de agua caliente/fría).
Puerta de entrada automática para los coches con mando a distancia y puerta peatonal automática.
Jardín a elegir por el cliente.
Moraira es un pequeño pueblo con buenos restaurantes, bares y muchos supermercados alrededor.
Hay una playa muy agradable justo al lado del pueblo que es ideal para las familias.
El paseo marítimo ofrece unas vistas tremendas del Peñón de Ifach al otro lado de la bahía de Calpe.
El camino de la costa de llegar allí es bien vale la pena hacer con algunas vistas espectaculares.
Moraira situado a 1 hora 15 minutos al norte de la A7 desde el aeropuerto de Alicante es bastante fácil de llegar.
Es aproximadamente la misma distancia o un poco menos al sur del aeropuerto de Valencia.
NIEUWBOUW VILLA IN MORAIRA MET UITZICHT OP ZEE Nieuwbouw villa in Moraira met privé zwembad en uitzicht op zee.
Op de begane grond vinden we een grote woon-eetkamer en open keuken, master bedroom met walking wardrobe en badkamer, terras aan de voorzijde met toegang tot het zwembad.
Op de eerste verdieping is 3 slaapkamers met inbouwkasten, 3 badkamers en suite.
Ook hier is er een kelder van 81m2 met wijnkelder.
De villa zal worden gebouwd met materialen van hoge kwaliteit.
De keuken zal worden gekozen door de klant, keukenkasten, werkblad en apparatuur.
Airconditioning met klimaatbeheersingssysteem (condense) in de woonkamers en slaapkamers.
Mitsubishi merk.
Het zwembad zal worden gebouwd met een buiten douche (warm/koud water aansluiting).
Automatische toegangspoort voor de auto's met afstandsbediening en automatische voetgangersdeur.
Tuin naar keuze van de klant.
Moraira is een kleine stad met goede restaurants, bars en tal van supermarkten in de buurt.
Er is een zeer aangenaam strand direct naast de stad dat zeer geschikt is voor gezinnen.
De boulevard biedt een geweldig uitzicht op Penon Ifach aan de overkant van de baai in Calpe.
De kustweg erheen is zeker de moeite waard met een aantal spectaculaire uitzichten.
Moraira ligt ongeveer 1 uur 15 minuten ten noorden van de A7 vanaf de luchthaven van Alicante en is dus vrij gemakkelijk te bereiken.
Het is ongeveer dezelfde afstand of iets minder naar het zuiden vanaf de luchthaven van Valencia.